I właśnie o tym opowiadał będzie nowy projekt pt. "Krok po kroku zbuduj swój ogród", realizowany na blogu "Z ogrodem na TY", relacjonowany również na łamach portalu Mój piękny ogród. Projekt, na przestrzeni kilkunastu miesięcy, w sposób szczegółowy przedstawiał będzie cały proces wykonania ogrodu, od pomysłu, przez wstępne koncepcje, projekt, aż po jego kompleksowe urządzenie. Natomiast warte podkreślenia jest to, że cykl będzie miał jedną, podstawową zaletę, która zdecydowanie wyróżni go na tle innych opracowań, poruszających podobne zagadnienia. Otóż będzie opracowany nie czysto teoretycznie, ale na konkretnym przykładzie, podczas rzeczywistej budowy domu, na prawdziwej działce i przy prawdziwym urządzaniu ogrodu.
Na wstępie warto również zaznaczyć, że nie będzie to opracowanie pokazujące jak wykonać ogród tzw. systemem gospodarczym, tzn. tylko i wyłącznie własną pracą i pomyłem. Owszem ogrody wykonane w ten sposób bardzo cenię, natomiast trzeba zauważyć, że nie każdy kto chce mieć ogród, ma czas, wiedzę, sprzęt i możliwości aby samemu go przemyśleć, zaplanować i zrealizować. Analogicznie jak z tym, że sami nie projektujemy i nie budujemy domów, nie naprawiamy samochodów, nie szyjemy ubrań, nie robimy mebli itd., itd.
Projekt " Krok po kroku zbuduj swój ogród" ma zatem na celu pokazanie tego, jak poprawnie ogród zaprojektować, jak go wykonać, z czyjej pomocy skorzystać i na jakim etapie, gdzie szukać wsparcia, jakich materiałów użyć, co będzie potrzebne, jak wszystko ze sobą połączyć i w jakiej kolejności. Pokaże również tak ważne kwestie jak chociażby to, jak zrealizować przyłącza do budynku, jak zagospodarować wodę deszczową, jak zaplanować nawodnienie, jak kształtować powierzchnię czy gospodarować masami ziemnymi.
Jak już wspomniałem, to co wyróżnia projekt "Krok po kroku zbuduj swój ogród" to fakt, że realizowany jest na konkretnej działce, przy prawdziwej inwestycji. To umożliwia pokazanie, że ogród powstaje naprawdę, a do jego zaprojektowania i wykonanania zastosowanie będą miały określone czynności, materiały i elementy.
Budynek, który powstaje, to średniej wielkości budynek, o powierzchnii użytkowej około 170 metrów kwadratowych, realizowany w oparciu o nowoczesny projekt, który realizuję na działce o powierzchnii 1130 metrów kwadratowych.

Powyższe zdjęcia to symulacje projektowe, wykonane dla potrzeb wizualizacji budynku przez pracownię projektową. A zatem nie jest to absolutnie żaden projekt ogrodu, ani nawet wstępna koncepcja, ale warto zauważyć, że ze względu na nowoczesną architekturę budynku, przyszły ogród również będzie w tonacji nowoczesnej, chociaż myślę wstępnie, że z akcentami ogrodów naturalistycznych, chociażby za sprawą traw ozdobnych.
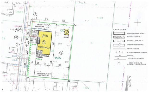
Plan zagospodarowania terenu, który jest załącznikiem do pozwolenia na budowę wygląda następująco:

Również nie jest to żaden plan ogrodu, ale za to może posłużyć jako podkład pod wstępne koncepcje. Kolorem zielonym obrysowana jest działka, na której ogród będzie wykonany, widać również realizowany budynek, ten duży, w kolorze żółtym. Działka, na której inwestycja jest realizowana, zlokalizowana jest w mieście, na typowym osiedlu domów jednorodzinnych, również w nowoczesnej tonacji, co także będzie miało odzwierciedlenie w projekcie i wyglądzie przyszłego ogrodu. Budynek i teren inwestycji na dzień rozpoczęcia projektu "Krok po kroku zbuduj swój ogród" wygląda następująco:

A zatem, jak widać, obszar będzie wymagał gruntownego sprzątania, niebawem realizowane będą przyłącza do budynku oraz nastąpi wstępne rozplantowanie humusu i profilowanie terenu. Rozpoczną się również prace związane z projektem ogrodu, co będzie tematem kolejnych postów tego cyklu.
Do projektu udało się zaprosić kilku Partnerów, z których pomocą i pokażę jak, co i kiedy wykonać, na co zwrócić uwagę, z jakich materiałów i usług skorzystać, aby proces budowy ogrodu maksymalnie uprościć, a jednocześnie poprowadzić go tak, aby powstał kompletny, piękny i funkcjonalny teren. Partnerzy są tak dobrani, aby zakresem swoich materiałów i usług umożliwić realizację ogrodu. Innymi słowy są to Marki z takich obszarów, które z pewnością będą dotyczyły każdego, kto myśli o rzetelnym i poprawnym wykonaniu ogrodu.
Ponadto, do kompleksowego wykonania ogrodu użytych zostanie jeszcze kilka innych grup produktów, m.in. materiał roślinny w zakresie drzew i krzewów ozdobnych, trawy z rolki, mebli ogrodowych, czy innych dodatków, o czym również będę wspominał w toku całego cyklu. A zatem być może wolne miejsce wśród Partnerów czeka właśnie na Państwa Markę?

Projekt "Krok po kroku zbuduj swój ogród" będzie miał misję edukacyjną, pokazującą wszystkie czynności i elementy, które trzeba uwzględnić przy planowaniu i budowie ogrodu. Co równie ważne, ma także uświadomić, że proces budowy ogrodu i zagospodarowania działki to proces rozbudowany i wielowątkowy, do którego trzeba podejść świadomie, ze znajomością własnych potrzeb, ale także dostępnych rozwiązań i dzisiejszych możliwości. Dlatego, że jak wspomniałem na wstępie, wykonanie ogrodu to czynność niemniej ważna od budowy samego domu, a poprawnie wykonana, może dać pełną satysfakcję z posiadania własnego kawałka przestrzeni. I odwrotnie. Popełnione błędy mogą ciągnąć się latami, nie wspominając o poczuciu niezadowolenia, czy zmarnowanym czasie i funduszach. Stąd projekt będzie pewnego rodzaju przewodnikiem po tym niełatwym temacie, a z drugiej strony nie aż tak skomplikowanym, aby nie można było się z nim zmierzyć.
Tomasz Szostak
Więcej o projekcie na blogu: https://zogrodemnaty.pl/krok-po-kroku-zbuduj-swoj-ogrod/











