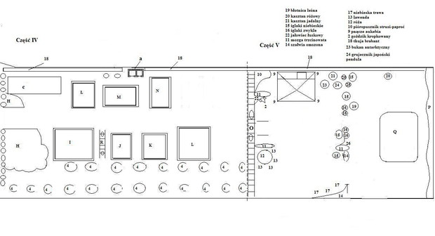
Witam wszystkich, którzy "odwiedzają" mój ogród. W tej galerii chciałabym Wam przedstawić jak małymi krokami jest tworzona moja Arkadia. Działka na której stoi dom ma pół hektara. Ogród planuję podzielić na 6 części – pokoi ogrodowych, tak, aby nie było w nim monotonii i żeby każdy znalazł w nim miejsce dla siebie. Część I to front domu. Od drogi posadziłam już thuje Smaragd, które mam nadzieję osłonią dom przed hałasem ulicy oraz zanieczyszczeniami. Część II to wejście do domu. Tu kwiaty sadzone są w sezonie w donicach. W tym roku na balustradzie w skrzynkach powiesiłam petunie z poziomówką indyjską, a w doniczkach do których z łatwością mają dostęp nawet mali goście truskawkę ozdobną „Rosana”, poziomkę ozdobną „Pagoda” oraz poziomki rozłogowe. Część III to kącik kawowy Część IV ogród, w którym znajdują się krzewy i drzewa owocowe, warzywnik oraz zielnik. Część V kącik rekreacyjno-wypoczynkowy z miejscem na grila. Projekt już ukazuje jego zarys, jednak na razie patrząc na ogród widzę go oczami wyobraźni. "Znajduje się" za częścią warzywno-sadową. Jego tajemniczości strzeże trejaż, który porasta winogron, kiwi, jeżyna bezkolcowa i jeżyno-malina. Część VI będzie to kącik z myślą o najmłodszych gościach ogrodu. Zapraszam zatem do ogrodu, który w niektórych miejscach postaram się "domalować" ;) opisami gdyż jest to jeszcze bardzo młodziutki ogródek A zatem zwiedzanie czas zacząć ;)























Komentarze